View all listings

11105 N 62nd Street

Omaha NE, 68152
4 Bed
4 Bath
2 Garage
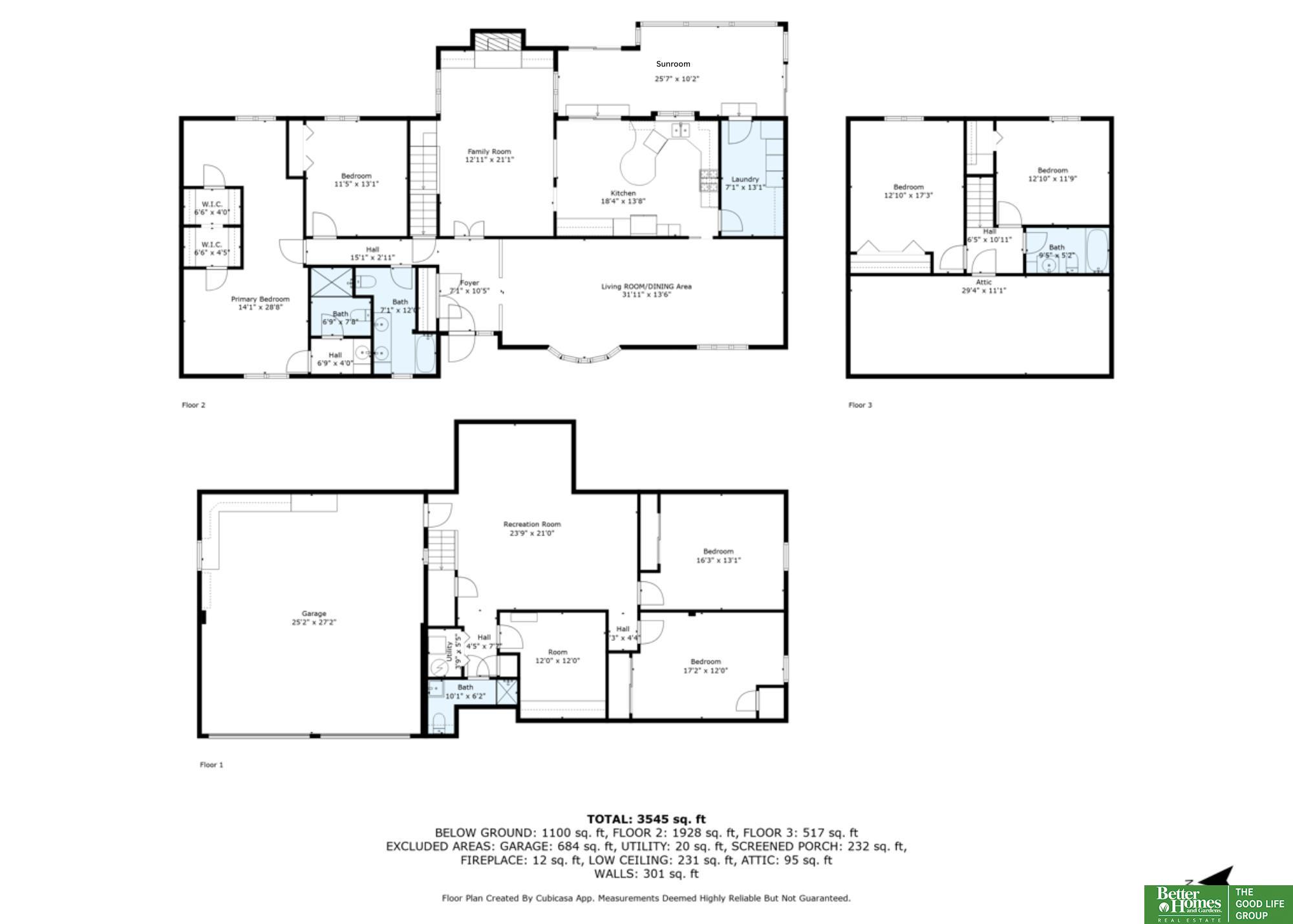
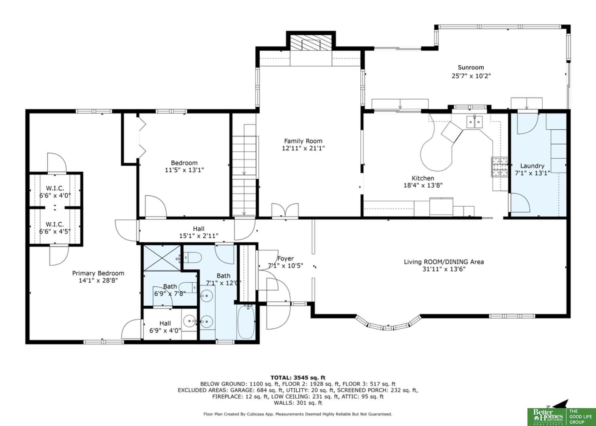
3,671 Sqft
For Sale
$605,000.00
Est. Mortgage $1,345.00 / mo
Get a closer look at this property Launch

About 11105 N 62nd Street

MLS ID#22519983

Discover a home that lives like a 6 bedroom (4 generous bedrooms with 2 stylish non-conforming) a hidden gem that feels worlds away but sits just minutes from everything. This 1.5-story serves up sweeping views of trees & sky, offering peace, privacy, & plenty of room to breathe. The backyard is pure resort living with a 20x40 in-ground pool, patio, & a 24x10 sunroom that blurs the line between inside & out. Morning coffee, late-night talks, cannonballs - this space has seen it all. You’ll love the thoughtful design & everyday comfort. The main floor hosts a generous primary suite, 2nd bedroom, & cozy great room anchored by a fireplace. Upstairs, 2 spacious bedrooms share a full bath. Downstairs, a newly finished lower level adds 2 stylish non-conforming rooms, a sleek ¾ bath, & a rec area that’s perfect for movie nights, teenagers, or weekend guests. With a new roof & flexible spaces for the way modern families live, this is your tranquil retreat right in the heart of it all. AMA

Facts & Features

Bedrooms
4 Bedrooms
Bathrooms
4 Bathrooms
Garages
2
Sqft (Total)
3,671 Sqft
Sub Division
COUNTRY SQUIRE ESTATES 2ND
Year Built
1973
Style
Price/Sqft (AG)
$232.00
School District
Omaha
Elementary
Springville
Middle School
Hale
High School
Northwest

Interior

Cooling Central Air
Fireplaces 1
Other Features n/a
Heating Natural Gas, Forced Air
Appliances n/a

Exterior

Roof n/a
Exterior n/a
Other Features n/a
Garage Type n/a
Garage Spaces 2

Mortgage Calculator

Est. Mo. Payment:   $1,234.00

Loan Payment
$0000.00
Mortgage Insurance
$0000.00
Taxes
$0000.00
%

This is not a commitment to lend. Not all borrowers will qualify. This is for illustrative purposes only and estimates are based on information you provided. Interest rates, mortgage insurance rates, and programs are subject to credit approval and available rates and terms will vary, sometimes drastically, based on borrower eligibility and program selected. For accurate interest rates and mortgage insurance rates please contact your mortgage consultant. For illustrative purposes FHA/VA and USDA loan amounts will include an estimate for the financed upfront MI amount.

The data relating to real estate for sale or rent on this web site comes in part from the IDX program of the Great Plains Regional MLS. The listing broker is shown on the bottom of each property's page. Some properties which appear for sale on this web site may subsequently have sold or may no longer be available. All information provided is deemed reliable but is not guaranteed and should be independently verified. IDX information is provided for consumers’ personal, non-commercial use, and may not be used for any purpose other than to identify prospective properties consumers may be interested in purchasing. Listing information copyright 2025, Great Plains Regional MLS.

Listing courtesy of: Better Homes and Gardens R.E.

Financing

Financing Contact